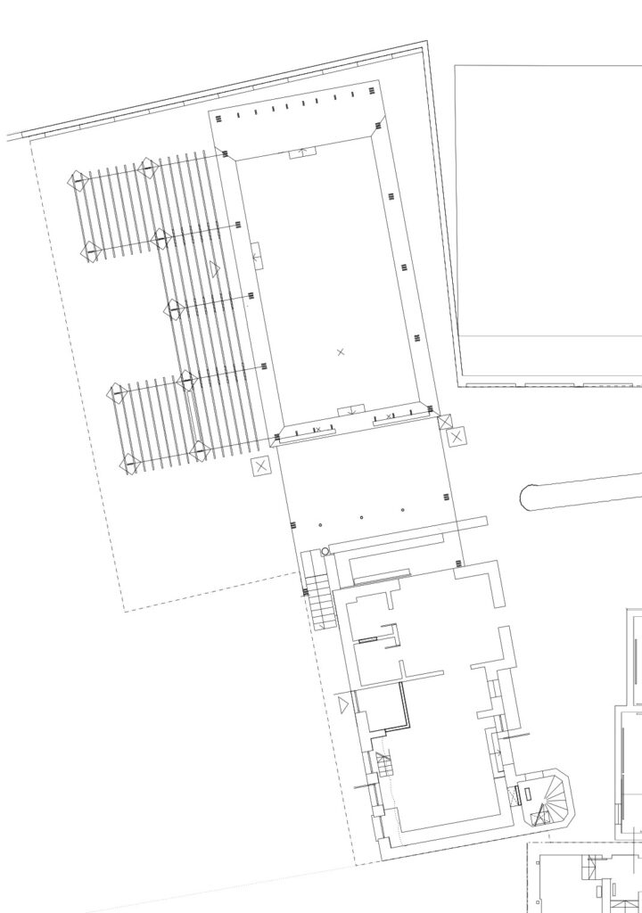
Un spațiu verde privat devine o grădină de vară, în extensia librariei Cărturești. Terasa de vără este formată din două structuri distincte: o structură metalică de o înălțime mai mare și o structură din lemn, mai mică, aceasta din urmă prelungindu-se cu o pergolă. Materiale folosite sunt pastrate în forma neprelucrată, brută.
Proiect realizat de biroul de proeictare Prodid, arhitect Șerban Sturdza în colaborare cu arhitect Toni Baghiu.