Arhitectură Toni Baghiu

ARHITECTURA TONI BAGHIU

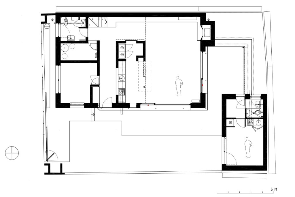
Casa Pietroșelului
Proiectul realizat pentru o familie formată din patru persoane propune un volum principal îmbrăcat în placaj de lemn și un acoperiș acoperit cu tablă ondulată. Bowindoul și logia de pe fațada principală sunt singurele elemente de décor. Proiectul va fi realizat în București.